SIGN UP CUSTOMER LOGIN
Main Photo

19 Total Photos [Click to View All]

Main Photo
Main Photo

3708 Sunnyside Avenue Brookfield, IL 60513

$485,000
New / MLS# 12593285 / Multi Unit - Multiple / Brookfield
9 Beds
3 Baths

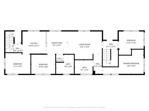
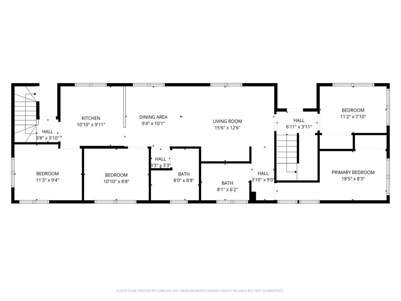
**MORE PHOTOS TO COME** Bring your investment ideas, because this spacious building has incredible potential! Most recently used as a group home, this 9 bedroom, 2 1/2 bath home was converted from apartments years ago. Baths are updated, oversized and wheelchair accessible; kitchen has granite counters. Full basement with hookups for laundry and extra storage plus a one and a half car garage. Layout offers possiblity of conversion to add additional apartment(s). Seller believes it was originally 4-2 bedroom units. Currently there are 5 bedrooms on the second floor and 4 on the first. Fabulous location 2 blocks to Metra and restaurants of downtown Brookfield. Building is being sold AS-IS. Cash offers or rehab loans only.

Read More » Read Less »

Baird & Warner Carrie Clements Agent Cell: 708.421.4680 Email

Mortgage Calculator

%
years/fixed
yearly
yearly (est.)
(Payments are an estimate and may vary by lender)

Estimated Payment

$ 1,219.24 per month $1,077.78 Principal & Interest $0.00 Property Tax (data not provided by mls) $141.46 Homeowner's Insurance
Get your competitive financing options.

Property Details

Property Type: Multi Unit - Multiple
Basement: Yes
Basement: Exterior Entry, Full
Garage: 1.5
Heating: Natural Gas
Lot Size: 125 x 25

Feature Descriptions

Additional rooms: Foyer
Bath Features: Accessible Shower
Exterior: Brick
Lot Dimensions: 125 x 25
Parcel#: 15344170400000
Parking: Yes, Garage Owned, Detached, Garage
Sewer: Public Sewer
Total Rooms: 17
Township: Proviso
Water: Lake Michigan

Schools

High School: Riverside Brookfield Twp Senior
Middle School: S E Gross Middle School
Elementary School: Brook Park Elementary School
School District: District 208

Disclaimer: The accuracy of all information regardless of source, including but not limited to square footage and lot size, is deemed reliable but not guaranteed nor warranted and should be personally verified through personal inspection by and/or with the appropriate professionals.

Location

See details and scored characteristics about this location.

Listing Office: J.W. Reedy Realty

Listing Office Phone: 630-629-0016



Listing data and photos distributed by MLSGRID
Member Participants (and their affiliated licensees, if applicable) shall indicate on their websites that IDX information is provided exclusively for consumers’ personal non-commercial use, that it may not be used for any purpose other than to identify prospective properties consumers may be interested in purchasing, that the data is deemed reliable but is not guaranteed by MLS GRID, and that the use of the MLS GRID Data may be subject to an end user license agreement prescribed by the Member Participant’s applicable MLS if any and as amended from time to time. MLS GRID may, at its discretion, require use of other disclaimers as necessary to protect Member Participant, and/or their MLS from liability.
Based on information submitted to the MLS GRID. All data is obtained from various sources and may not have been verified by broker or MLS GRID. Supplied Open House Information is subject to change without notice. All information should be independently reviewed and verified for accuracy. Properties may or may not be listed by the office/agent presenting the information.


Login to my Baird & Warner account

Pixel